Oportunidad de inversión DUPLEX EN POZO en Solares de Manantiales
En Grupo Azor te traemos esta exclusiva oportunidad de inversión: un moderno duplex fondo sur desarrollado en dos plantas, ubicado en uno de los barrios más desarrollados y mejor ubicación de Manantiales II.
Zona privilegiada, en un entorno consolidado con múltiples opciones comerciales, gastronómicas y de esparcimiento.
Características de la propiedad:
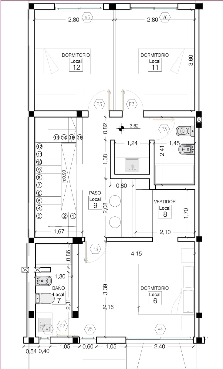
- Superficie total: 180 m de terreno (140m cubiertos 50m semi-cubiertos).
- Aberturas de aluminio línea modena 45 e imperial con dvh
- Puertas interiores de piso a techo
- Incluye horno, anafe, caldera dual y loza radiante
- Artefactos inodoro y videt Roca The Gap y Griferia Roca cierre cerámico
- 2 Dormitorios con placard e interiores de gran capacidad y calidad.
- 1 Dormitorio con Vestidor y baño en Suite.
- 1 Baño Completo en Planta Alta con terminaciones de calidad.
- 1 Baño Social en Planta Baja.
- Luminoso living-comedor.
- Cocina semi-integrada con mobiliario completo y funcional.
-
- Patio luminoso con Galería, Asador y Espacios de Guardado.
- Una opción perfecta tanto para vivir como para invertir en una zona de constante desarrollo y alta demanda.
Propiedad con todos los servicios activos, documentación al día.
¡Contáctanos para más información o coordinar una visita!
En Grupo Azor, trabajamos para que cada cliente encuentre el lugar perfecto, ya sea para vivir, trabajar o invertir.
Consultá por más propiedades en Docta Urbanización (Boulevard, Avenida, Central, Parque), Siete Soles (Heredades, Alqarias, Parterres, Mitte, Verandas, Duplares) Manantiales (Campos, Colinas, Costas, Cuestas, Pampas, Prados, Quebradas, Rincones, San Ignacio, Solares, Terrazas, Riveras, Brisas, Manantiales Country, Altos, Miradores, Lomas) Cañuelas, La Cascada, La Ernestina, AcquaVista, Tejas 3, Tejas 4, Distrito Sur, Valle Cercano, Lomas del Chateau, Balcones del Este, Solares de Rancagua, Tejas 4, Las Cañitas, Valle del Golf, Paso de Piedra, Estación del Carmen, Causana, La Arbolada, Estancia Santa Lucia, Tres Gracias, Potrerillo de Larreta, Campos del Virrey, La Melinca, Puerto del Águila, Comarca de Allende, Antigua Estancia, Barrio Norte 1 y 2, La Morada, San Isidro, Chacras de la Villa, La Cercanía, San Francisco, Las Corzuelas, Aires del Noreste, Villa Catalina, Bela Vista, Talar de Mendiolaza, San Alfonso del Talar, Estancia El Terrón, Cuatro hojas, Estancia Q2, La Herradura, La Serena, Fincas del Sol, Sierra Nueva, La Paloma, Cumbres del Golf, Terrazas de Villa Allende, Bosque Alegre, Corral de Barrancas, Lomas del Cigarral, La Adela, La Pampeana, Estancia San Miguel, Santina Norte, Piana, 5 Lomas, Lomas de la Carolina, Las Delicias, La Pankana, Cinco Lomas, El Bosque, La Rufina, Chacra del Norte, La Deseada, Colinas de la Deseada, Maitenes de la Deseada, Vistas de la Deseada, Cuesta Colorada, La Estanzuela, La Cuesta y otros!
Información de la zona